<p><b>Phòng khách căn hộ 3PN+1</b></p>
<p><b>CĂN HỘ 3 PHÒNG NGỦ ~ Không gian sống chuẩn cho những gia đình nhiều thế hệ</b><br>
<br>
Căn hộ 3 phòng ngủ dự án Vinhomes Ocean Park là loại căn hộ có diện tích lớn nhất và là căn hộ chung cư lý tưởng cho những gia đình có nhiều thế hệ cùng chung sống. Với diện tích từ 75 đến hơn 100m2 và nằm ở vị trí góc của mỗi tòa nhà, lô gia và cửa sổ các phòng ngủ đều có khoảng view rộng nên gia chủ có thể chiêm ngưỡng khung cảnh bên ngoài từ bất kỳ vị trí nào.<br>
<img src="http://cwe.vn/472584D2003B40A0/08F8A93FD50C9E67472584DB000F9268/$File/6.png"></p>
<p><b>Phòng ngủ căn hộ 3PN+1</b><br>
<br>
+ 2 lô gia: 1 lô gia phòng khách để thư giãn và ngắm cảnh; 1 lô gia phụ chứa máy giặt và phơi đồ để không mất mỹ quan của căn hộ</p>
<p> </p>
<div class="dsanh fl"><img src="http://cwe.vn/472584D2003B40A0/08F8A93FD50C9E67472584DB000F9268/$File/3PN.jpg"></div>
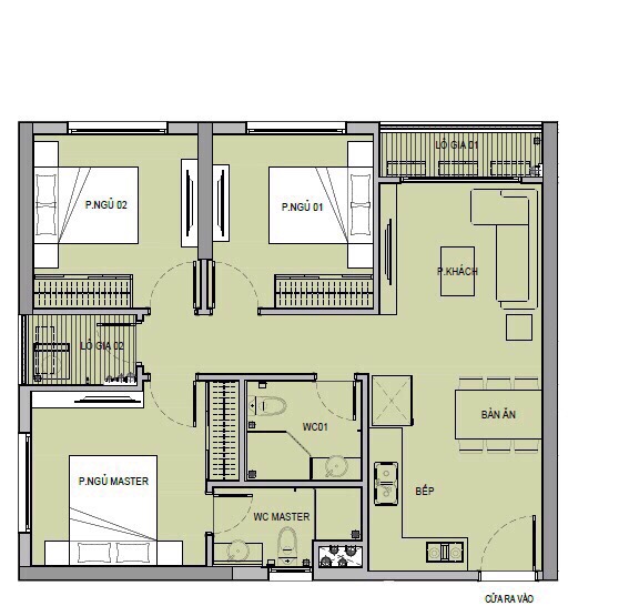
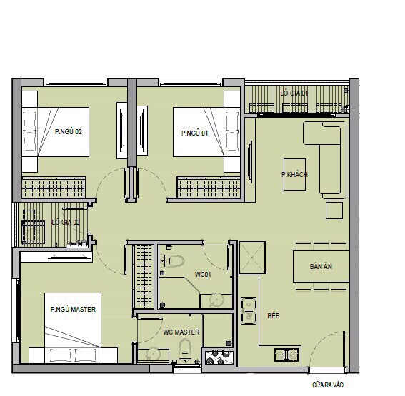
<div class="dsanh fl"><b>Mặt bằng thiết kế căn hộ 3PN+1</b><br>
<br>
Căn hộ 3 phòng ngủ có thiết kế bao gồm:<br>
<br>
+ khu bếp, bàn ăn nối liền với phòng khách tạo không gian sinh hoạt chung rộng rãi, ấm cúng</div>
<p><img src="http://cwe.vn/472584D2003B40A0/08F8A93FD50C9E67472584DB000F9268/$File/1.png"></p>
<p><b>Không gian bếp căn hộ 3PN+1</b><br>
<br>
+ 3 phòng ngủ, trong đó có 1 phòng ngủ master có nhà vệ sinh bên trong dành cho bố mẹ</p>
<p><img src="http://cwe.vn/472584D2003B40A0/08F8A93FD50C9E67472584DB000F9268/$File/8.png"></p>
<p><b>Lô gia phụ căn hộ 3PN+1</b><br>
<br>
Căn hộ 3 phòng ngủ Vinhomes Ocean Park sẽ phù hợp với những đối tượng sau:<br>
<br>
• Những hộ gia đình có đông thành viên nhiều thế hệ hoặc những gia đình cần không gian sống rộng rãi trong sinh hoạt.<br>
<br>
• Những hộ gia đình có các con lớn cần phòng riêng.<br>
<br>
• Những hộ gia đình cần phòng tạo không gian riêng tư cho mỗi người hoặc để phòng trống tiếp khách<br>
<br>
<i><b>Tham khảo Link căn hộ mẫu 3PN+1</b></i> <a href="https://my.matterport.com/show/?m=QWeX6rp4QVn"><em><strong>TẠI ĐÂY</strong></em></a></p>
<p><em><strong>Hotline: 0967 908 292</strong></em></p>
Phòng khách căn hộ 3PN+1
CĂN HỘ 3 PHÒNG NGỦ ~ Không gian sống chuẩn cho những gia đình nhiều thế hệ
Căn hộ 3 phòng ngủ dự án Vinhomes Ocean Park là loại căn hộ có diện tích lớn nhất và là căn hộ chung cư lý tưởng cho những gia đình có nhiều thế hệ cùng chung sống. Với diện tích từ 75 đến hơn 100m2 và nằm ở vị trí góc của mỗi tòa nhà, lô gia và cửa sổ các phòng ngủ đều có khoảng view rộng nên gia chủ có thể chiêm ngưỡng khung cảnh bên ngoài từ bất kỳ vị trí nào.

Phòng ngủ căn hộ 3PN+1
+ 2 lô gia: 1 lô gia phòng khách để thư giãn và ngắm cảnh; 1 lô gia phụ chứa máy giặt và phơi đồ để không mất mỹ quan của căn hộ
Mặt bằng thiết kế căn hộ 3PN+1
Căn hộ 3 phòng ngủ có thiết kế bao gồm:
+ khu bếp, bàn ăn nối liền với phòng khách tạo không gian sinh hoạt chung rộng rãi, ấm cúng

Không gian bếp căn hộ 3PN+1
+ 3 phòng ngủ, trong đó có 1 phòng ngủ master có nhà vệ sinh bên trong dành cho bố mẹ

Lô gia phụ căn hộ 3PN+1
Căn hộ 3 phòng ngủ Vinhomes Ocean Park sẽ phù hợp với những đối tượng sau:
• Những hộ gia đình có đông thành viên nhiều thế hệ hoặc những gia đình cần không gian sống rộng rãi trong sinh hoạt.
• Những hộ gia đình có các con lớn cần phòng riêng.
• Những hộ gia đình cần phòng tạo không gian riêng tư cho mỗi người hoặc để phòng trống tiếp khách
Tham khảo Link căn hộ mẫu 3PN+1 TẠI ĐÂY
Hotline: 0967 908 292
|